Lokal użytkowy Stargard Stare Miasto
Stargard Pokaż na mapie ›
Dodane: Poniedziałek, 01 Grudzień, 2025 14:09
3 990 zł
Szczegóły ogłoszenia
- Kategoria: Biura i lokale / Do wynajęcia
- Przeznaczenie:Inne przeznaczenie
- Powierzchnia:173 m2
- Sprzedaż:Pośrednik
- Cena: 3 990 zł
Opis oferty
Atrakcyjny, zmodernizowany lokal użytkowy w prestiżowej lokalizacjiPrezentujemy wyjątkowy, parterowy lokal o powierzchni 173 m², położony w samym sercu Starego Miasta w Stargardzie, przy ulicy Chrobrego, w sąsiedztwie Centrum Nauki Filar i Bramy Wałowej.
Lokal po generalnym remoncie, dostępny od zaraz, doskonały na działalność usługową, szkoleniową, eventową, handlową lub medyczną.
⸻
STANDARD I UKŁAD POMIESZCZEŃ
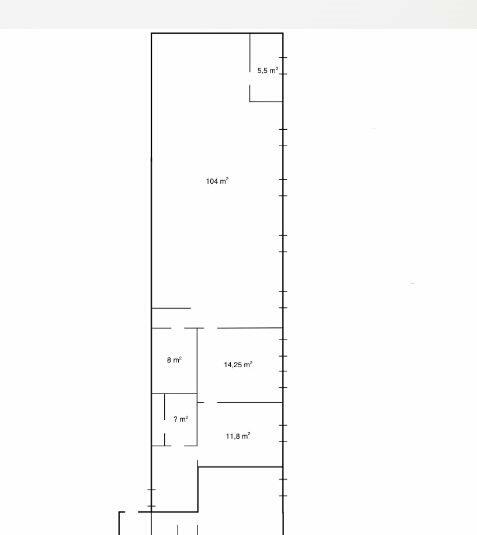
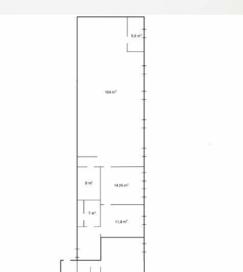
• Sala główna ok. 104 m² - jasna i przestronna, z czterema dużymi oknami (205×137 cm) wyposażonymi w żaluzje antywłamaniowe,
• Elegancka toaleta dla klientów w części głównej sali,
• Zaplecze podzielone na trzy pomieszczenia:
• część kuchenna,
• zmywak z dużym zlewem i zmywarką,
• pomieszczenie socjalne z drugą toaletą
• Miejsce na szatnię dla pracowników,
• Drugie wejście od zaplecza z rampą dostawczą, teren ogrodzony,
• Podpiwniczenie - dodatkowa przestrzeń magazynowa,
• Monitoring wizyjny obejmujący cały obiekt.
Załączony rzut został wykonany wyłącznie w celach poglądowych, aby ułatwić orientację w układzie pomieszczeń. Rzut nie pochodzi od architekta - wymiary mogą się nieznacznie różnić od rzeczywistych.
⸻
WYPOSAŻENIE I TECHNOLOGIA
• Dwie klimatyzacje Kaisai Eco z funkcją grzania,
• Pompa ciepła LG ThermaV (2023) + ogrzewanie podłogowe,
• Nowa instalacja elektryczna i system alarmowy,
• Monitoring wewnętrzny i zewnętrzny,
• Zaplecze wyposażone: zmywak, zmywarka, lodówka, mikrofala, kuchenka podręczna, stoły robocze,
• Sala wyposażona: stoły, krzesła, rzutnik multimedialny,
• Brak gazu, prąd 16 kW, woda i kanalizacja z sieci miejskiej.
⸻
MOŻLIWOŚCI WYKORZYSTANIA
Obiekt przystosowany jest do organizacji wydarzeń i zajęć grupowych:
• Imprezy okolicznościowe z przestrzenią do tańca: do 50 osób,
• Szkolenia, warsztaty, prezentacje: do 70 osób.
Lokal idealnie sprawdzi się jako:
• przestrzeń usługowa (biuro, showroom, studio),
• sala szkoleniowa lub warsztatowa,
• placówka dziennego pobytu / klub seniora,
• studio fitness, joga, taniec, rekreacja,
• miejsce spotkań, wydarzeń, kursów, prezentacji,
• lokal handlowy - sklep specjalistyczny, apteka, drogeria,
• gabinet medyczny lub kosmetyczny, poradnia, punkt rehabilitacyjny.
• punkt gastronomiczny/ kawiarnia/ catering z możliwością obsługi imprez okolicznościowych ( obecnie bez gotowania na miejscu, tylko podgrzewanie i serwis),
• możliwość uzyskania koncesji na sprzedaż alkoholu, lokal wcześniej ja posiadał ( tawerna, sklep), pomimo bliskości szkoły .
⸻
WARUNKI NAJMU
• 3 990 zł netto/mies. - lokal bez wyposażenia ,
• 4 990 zł netto/mies. - lokal z pełnym wyposażeniem,
• Kaucja: równowartość dwóch miesięcznych czynszów brutto
• Wynagrodzenie biura: opłata jednorazowa -równowartość jednomiesięcznego czynszu,
• Najemca podpisuje na siebie umowy: prąd, woda, odpady,
• Wymagane ubezpieczenie OC Firmy na kwotę minimum 400 000 zł.
⸻
ATUTY NIERUCHOMOŚCI
• Po generalnym remoncie - wysoki standard wykończenia, gotowy do użytkowania,
• Dwie klimatyzacje + pompa ciepła + ogrzewanie podłogowe,
• Monitoring, system alarmowy, dwa wejścia, zaplecze z rampą,
• Duże okna z ekspozycją od głównej ulicy, reprezentacyjna lokalizacja,
• Doskonała lokalizacja w zabytkowym sercu Stargardu, gotowy do natychmiastowego użytkowania.
Jeśli szukasz miejsca na swój biznes- serdecznie zapraszam do kontaktu i umówienia prezentacji. Może ta nieruchomość czeka właśnie na Ciebie.
Prezentacja nieruchomości przy udziale agenta nieruchomości wiąże się z obowiązkiem podania swoich danych osobowych a także wyrażeniem pisemnej zgody na wykonanie usługi pośrednictwa w najmie nieruchomości.
Pośrednik odpowiedzialny zawodowo za wykonanie umowy pośrednictwa: Jacek Więckowski (licencja nr: 23567)
Oferta wysłana z systemu Galactica Virgo
Numer oferty: 4KAT-LW-22685-3
Sprawdź zainteresowanie tym ogłoszeniem
Wyświetlenia
Data dodania
Ostatnio widziany
Obserwujących
Wysłane zapytania
Odsłony telefonu
Powiadom o podobnych ogłoszeniach
Lokalizacja: Stargard
Kategoria: Nieruchomości » Biura i lokale » Do wynajęcia
Cena: od 3500 zł do 4500 zł Powierzchnia : od 147 m2 do 199 m2
Chcę otrzymywać powiadomienia o nowych ofertach

Konto firmowe
Na Lento.pl od 30 maj 2019
Odpowiada szybko
Strona użytkownika
- Wypromuj ogłoszenie
- Zgłoś naruszenie
- Drukuj ulotkę
- Edytuj/usuń ogłoszenie
- Udostępnij ogłoszenie
- Dodaj na Facebook






























